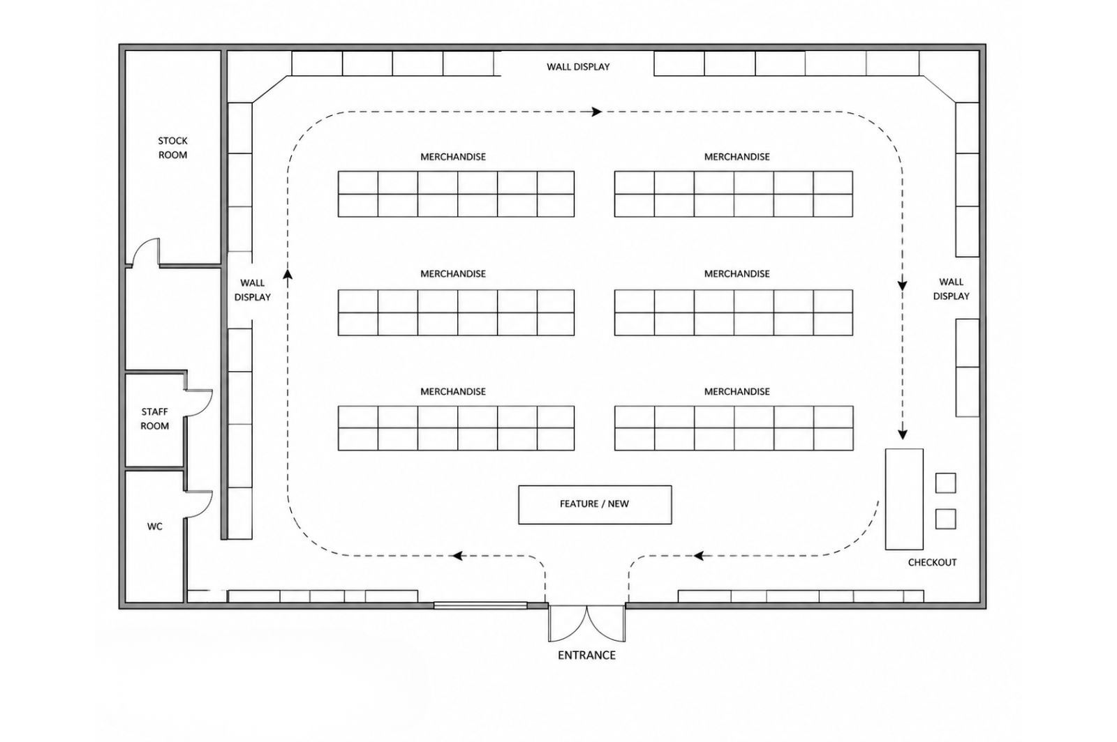
What Is A Shop Fitter?
A shop fitter is the trade professional or company responsible for turning an empty commercial space into a working retail store, showroom, office, hospitality venue or customer-facing business. This can include everything from planning the layout and manufacturing custom joinery through to coordinating trades, installing fixtures, managing timelines, and making sure the finished space









